Living area
About 171 m²
Plot area
About 211 m²
Construction year
Built in 1989
Number of rooms
6 rooms (3 bedrooms)

Dalkruid 8

3892 AP, Zeewolde (Flevoland)

Flevopand Real Estate is particularly proud to present this beautiful and very spacious semi-detached 2-1 link house, within throwing distance of the supermarket, with 3 (very spacious) bedrooms. The house stands in a district which has been designed according to one urban planning concept, resulting in houses having recognizable and consistent architecture. Namely, the characteristic late-'80s design with light brickwork and a round gable window that creates a harmonious street scene. Dalkruid Street is part of the green structure around Kunstbaan, Zeewolde's landscape art route, giving the street a spacious and park-like character.

Discover a home with surprisingly spacious rooms and plenty of possibilities. Dalkruid 8 offers a solid foundation, generous living space, and several multifunctional rooms, ideal for those seeking comfortable accommodation and the potential to fully renovate the property to their taste.

Classification:

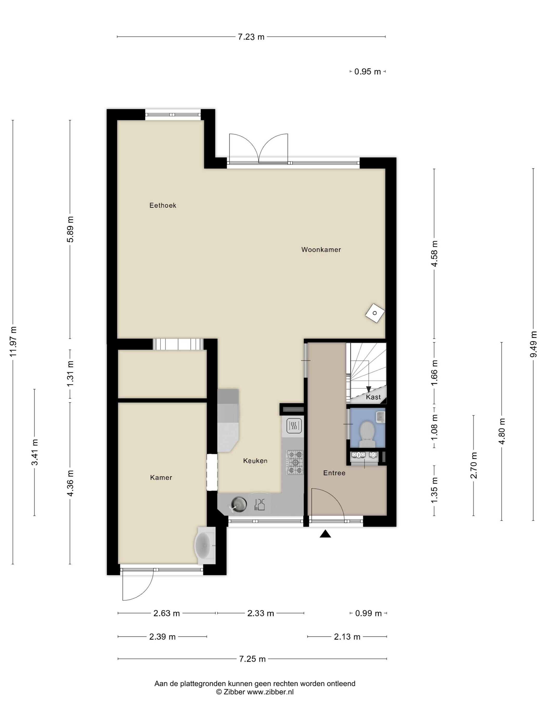
Ground floor:
When you enter the house, you come into the hallway and on the right there is a coat closet area; also located here is the toilet and the staircase with a storage space underneath. Then you step into the very spacious living room. Thanks to many windows, lots of daylight falls inside, and the present wood-burning stove (for transfer) creates a warm, cozy atmosphere. The ground floor is additionally equipped with underfloor heating, which contributes to the comfort of living.

The open kitchen is outdated and in need of replacement, although it still functions properly; you will find a dishwasher, combination microwave, refrigerator, and gas stove with hood. Then there is the former garage which has been converted into two separate work/study rooms. One of these spaces even has its own entrance, making it ideal for a home practice, office space, or studio. This also offers excellent opportunities to make the property age-friendly by converting one of these areas into a bedroom with bathroom.

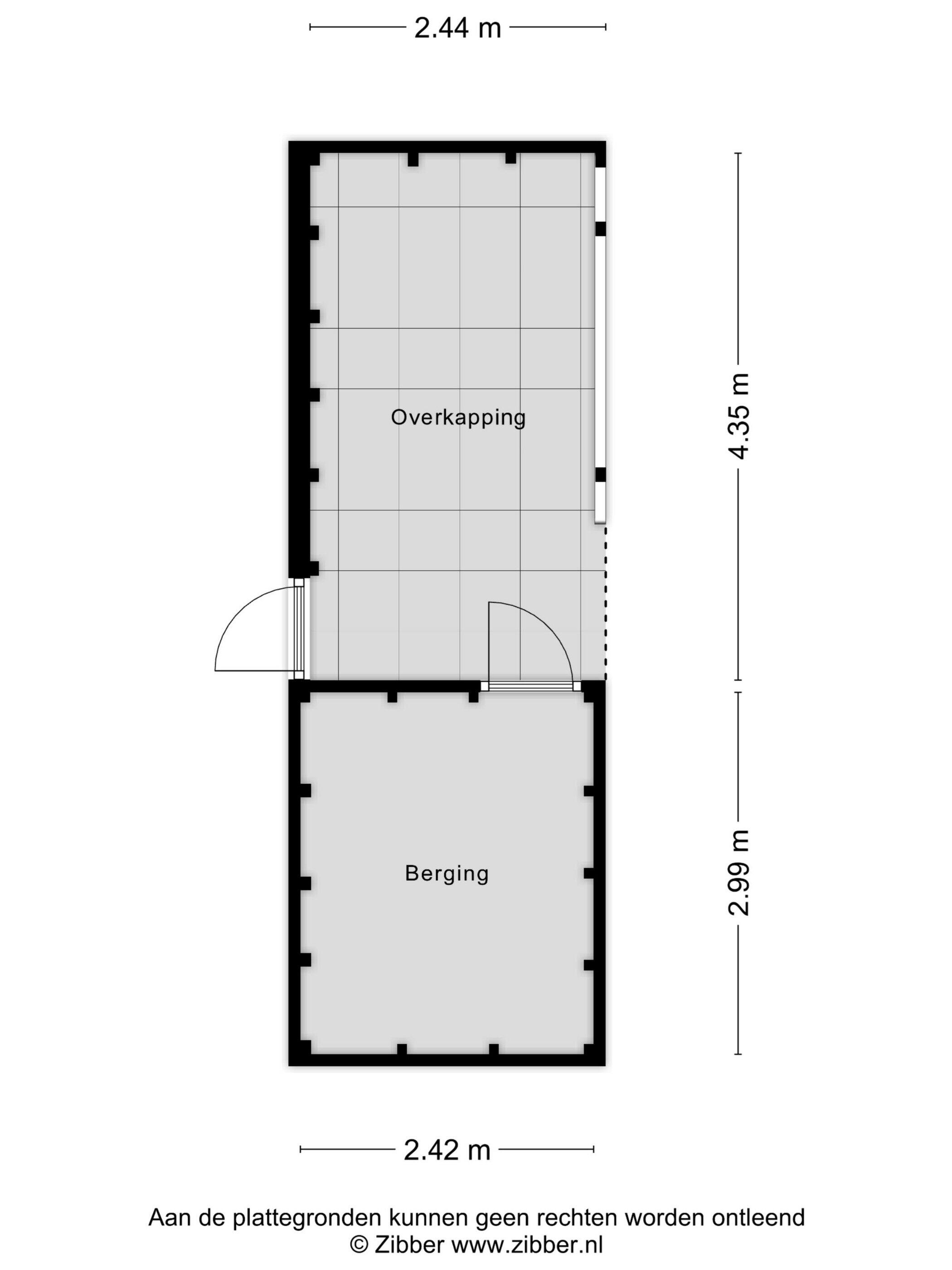
The property also features a lovely, spacious garden in the southwest: an ideal spot for sunny afternoons, play space, or to redesign a beautiful garden. Here are several places to relax, including a deck with terrace, and throughout the width of the garden there is also a canopy and a garden shed realized.

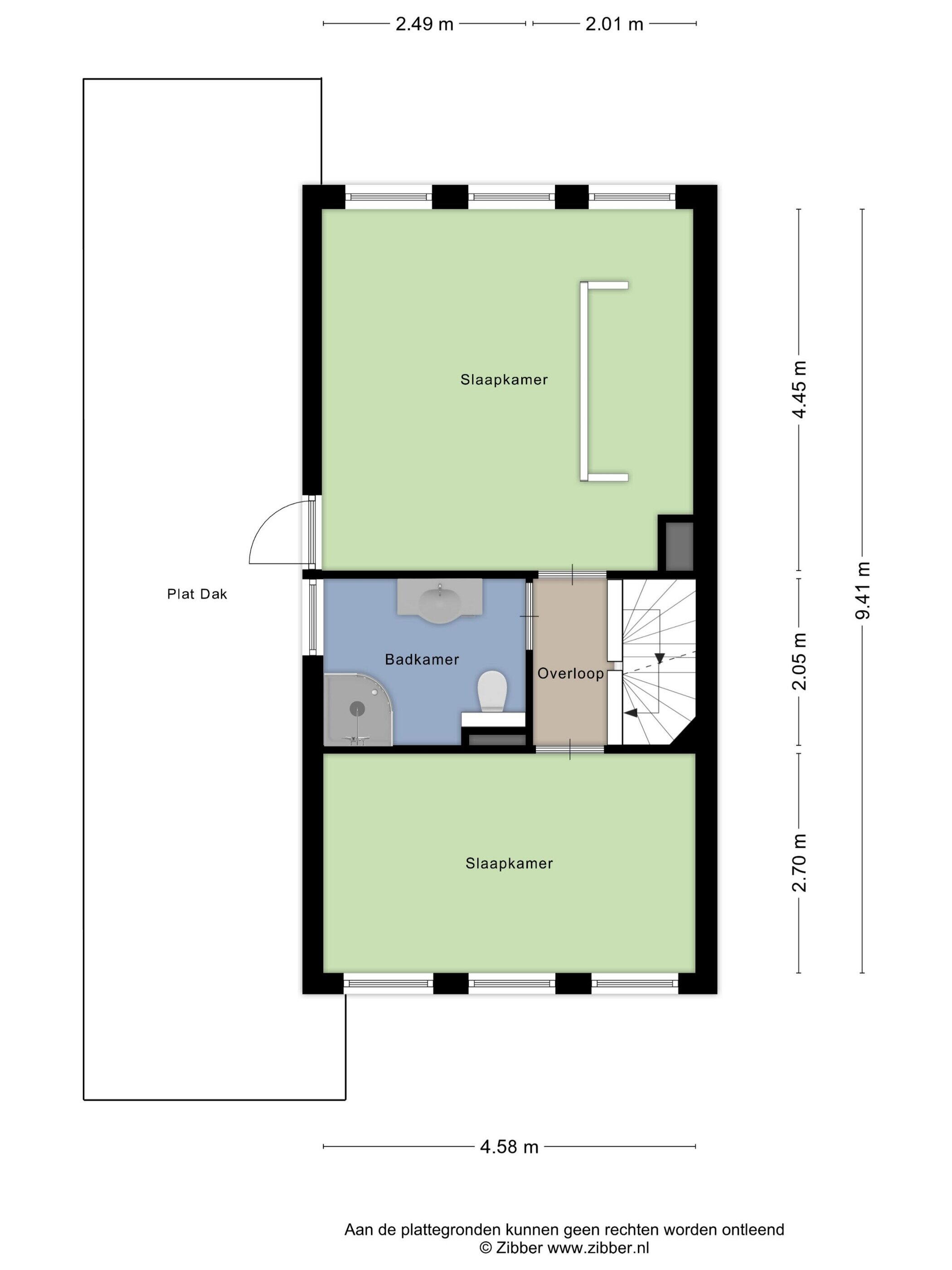
First floor:
On the first floor there are two bedrooms, one of which is particularly spacious. This room is ideal for creating two separate bedrooms. The bathroom is equipped with underfloor heating and has a shower, sink, and second toilet — functional and neat, but somewhat dated in terms of finish.

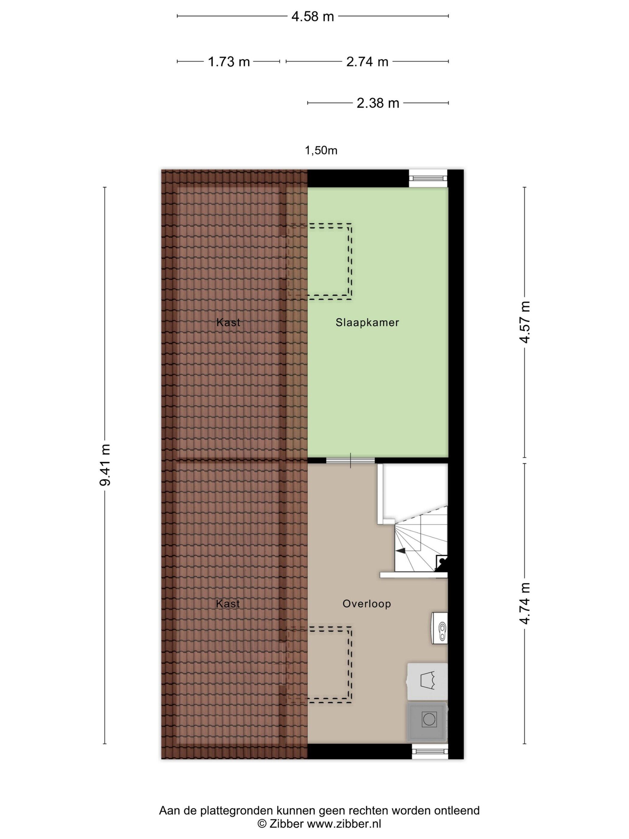
Second floor:
The second floor offers a spacious hallway with connections for your washing machine and dryer, and an additional bedroom. This floor can also be divided differently.

So there are enough possibilities! Dalkruid 8 is a house with character, space and potential, a home that can grow into a fantastic, contemporary family home with some love and attention. Let yourself be surprised by the possibilities and feel free to arrange a viewing.

Details

- Year of construction 1989
- Energy label B
- Spacious home with potential
- Floor heating
- Recently renewed boiler (2024)
- Garden on the southwest
- Make it life-cycle sustainable
- Geschikt voor een praktijk aan huis
- Loopafstand van centrum en AH

Environment:
Wist u dat er in heel Zeewolde niet één stoplicht staat? In Zeewolde is in principe alles lopend of per fiets bereikbaar. Verschillende basisscholen, voor- en naschoolse opvang, middelbare school, maar ook de supermarkt en de sportschool zijn hooguit een paar minuten fietsen. De sportvelden en sporthal, waar een grote diversiteit aan sporten beoefend worden alsmede een golfbaan liggen vrijwel om de hoek. Met een korte wandeling loopt u zo het Horsterwold in, het grootste aaneengesloten loofbos in West-Europa, met onder meer het unieke natuurgebied de Stille Kern! Hier kun je eindeloos fietsen, skaten, paardrijden en wandelen. De hond mag aangelijnd mee, maar er zijn ook stukken bos waar ze lekker vrij rond mogen snuffelen. Wat het nog leuker maakt is dat u tijdens de wandeling zomaar een ree, vos of bever tegen kunt komen! Dan hebben we het nog niet eens over de vele (roof)vogels die er gespot kunnen worden. Als u de andere kant op wandelt bent u met vijf minuten op het strand van het Wolderwijd. Hier treft u diverse stranden met wisselende thema’s aan zoals een kinderstrand, jongerenstrand, surfstrand en een hondenstrand. Bij Fika kunt u heerlijk een kopje koffie drinken of ‘s avonds genieten van een drankje en een lekkere maaltijd met uitzicht op het atol (een besloten zwem locatie aan het strand in het Wolderwijd).
And all of this within walking and cycling distance of your own home!

The center of Zeewolde is clear and modernly arranged, everything within walking distance and free parking everywhere. If the weather isn't cooperating, Ravelijn offers possibilities for covered shopping. In the center you will find shops for daily groceries, but also stores where you can have fun shopping. Besides branches of larger retail chains, there are various smaller boutiques such as clothing and sports boutiques, jewelers, florists, The Little Shops, and much more, making a visit to the center an enjoyable outing. Every Friday morning there is a weekly market on the Kerkplein.

Dalkruid 8 is een woning met karakter, ruimte en potentie, een huis dat met wat liefde en aandacht kan uitgroeien tot een fantastische, eigentijdse gezinswoning. Laat u verrassen door de mogelijkheden en plan gerust een bezichtiging.

Floor plans

Transfer

Asking price
€ 450,000 k.k.
Status
Available
Acceptance
In consultation

Construction

Object type
Single-family home, semi-detached house
Type of construction
Existing construction
Construction year
1989
Type roof
Rooftop covered with tiles

Area and content

Living area
171 m²
Plot area
211 m²
Contents
735 m³
Other indoor space
27 m²
Building-related outdoor area
26 m²

Classification

Number of rooms
6 rooms (3 bedrooms)
Number of bathrooms
1 bathroom (1 toilet)
Bathroom facilities
Toilet, douche, wasbak, wastafelmeubel, vloerverwarming
Number of floors
3 residential levels
Provisions
Mechanische ventilatie, rookkanaal, glasvezelkabel, dakraam

Energy

Energy label
B
Energy label registration
06-11-2025
Isolation
Fully insulated, double glass
Heating
Boiler, underfloor heating partially, wood stove
Hot water
CV boiler
Boiler
Atag p-serie, gas, combiketel, uit 2024, eigendom

Outdoor space

Location
Quiet road, residential area
Garden
Front garden, back garden
Dimensions front garden
24.5 m² (3.5 meter diep en 7 meter breed)
Dimensions backyard
94.5 m² (13.5 meter diep en 7 meter breed)
location of garden
Located in the southwest

Mine space

Shed / storage
Detached wooden garage
Provisions
Electra

Parking facility

Type of parking facility
Public parking

Energy consumption in Zeewolde

Energy label this property

Energielabel B

Energy label publication: 06-11-2025

Annual electricity consumption

2910 kWh

(Average semi-detached house in Zeewolde)

Annual gas consumption

810 m³

(Average semi-detached house in Zeewolde)

* Figures are derived from CBS and are intended as an indication and may differ for this property

Mortgage costs indicator

Own contribution:
Savings / excess value

Interest:
Lowest 10-year interest rate

Lowest 10-year interest rate

2,73% - Centraal Beheer Groen... - NHG


3% - Centraal Beheer Groen Lee... - 80%

Lowest 20-year interest rate

3,18% - Argenta Groen Hypothee... - NHG


3,39% - Argenta Groen Hypothee... - 80%

Lowest 30-year interest rate

3,35% - Argenta Groen Hypothee... - NHG


3,56% - Argenta Groen Hypothee... - 80%


Mortgage:

Gross monthly expenses: € 0 p/m

Net monthly expenses: € 0 p/m

How do we calculate this?

The interest rate is based on the lowest 10-year fixed rate for a single mortgage part. The stated rate (3% zonder NHG) was verified on 15-11-2025. This calculation is based on an annuity mortgage that is fully repaid, with monthly payments remaining the same throughout the entire term. The actual interest rate and net monthly costs may vary depending on your personal situation and the mortgage provider. Consult a financial advisor for an accurate calculation and advice. No rights can be derived from this calculation; it is for indicative purposes only.

Documentation

Cadastral map

Living environment

WOZ valuation report

BAG extract

Energy label

List of items

Cadastral map

Questionnaire part 1

Meeting report

Visit our website

To make an offer

Download everything

Viewing solar limits

Residents of Zeewolde

Statistics for postal code area 3892

Total number of inhabitants
5335 residents
Men
50%
Women
50%

Residents of Zeewolde

Statistics for postal code area 3892

until 15 years
15%
15 to 25 years
13%
25 to 35 years
19%
45 to 65 years
37%
65 and older
16%

Households in Zeewolde

Statistics for postal code area 3892

Single without children
27%
Multiple persons without children
33%
Households without children
60%

Households in Zeewolde

Statistics for postal code area 3892

Households with one child
9%
Households with multiple children
31%
Households with children
40%

Homes in Zeewolde

Statistics for postal code area 3892

Housing for 1945
1%
Houses between 1945 and 1965
1%
Houses between 1965 and 1975
1%
Houses between 1975 and 1985
1%
Houses between 1985 and 1995
93%

Homes in Zeewolde

Statistics for postal code area 3892

Homes between 1995 and 2005
5%
Homes between 2005 and 2015
2%
Homes after 2015
1%
Rented apartments
30%
Purchase properties
70%

Other income Zeewolde

Statistics for postal code area 3892

Average WOZ value
€ 262.000,-
People under 65 with disability benefits
7%

Other income Zeewolde

Statistics for postal code area 3892

Addresses per square kilometer
971
"Urbanity (scale 1 to 5)"
40%
Postcode kaart 3892 Gemeente kaart zeewolde

Flevopand Makelaars

If you have questions or would like to schedule a viewing, you can use the form on the right. You will then be contacted shortly thereafter.

Raadhuisstraat 40

3891 EB, Zeewolde

036 200 2123 info@flevopand.nl www.flevopand.nl

About Flevopand Real Estate

Multi-regional

Endless green, infinite water, birds, sky, space, the dynamism of a big city or precisely the coziness of a village? The Province of Flevoland offers it all. No wonder then that many people want to live here very much or wish to do so. Are you also looking for a house in this pleasant environment? We are happy to help you get started.

Flexible agent

Whether you are house hunting or looking to sell your home – in a region with so many faces, it is handy to engage the services of an agent who truly knows the area. At our office, we have extensive experience: 3 years working in Amersfoort, 5 years working in Almere, 7 years in Lelystad, and already 10 years living in Zeewolde. We therefore know the Flevoland housing market, the surroundings, and the opportunities. I have gained more than 20 years of experience at various real estate agencies and am happy to make that knowledge available to home seekers and house sellers in Zeewolde and the surrounding area.

With kind regards,

Julian Entrop

About Flevopand Real Estate
Reviews Flevopand Makelaars

Dalkruid 8, Zeewolde

€ 450,000 k.k. - Available